美しいデザインや正しい省エネ技術は 恒久性能の一部です 【旧レディオクラブ】
[1324]  [1323]  [1322]  [1321]  [1320]  [1319]  [1318]  [1317]  [1316]  [1315]  [1314

リノベーションってどんな風に出来るの?

そんな疑問をお持ちの方も多いでしょう。

 

って訳で本日はリノベプランにて「ボツ案」の御紹介。

 

こちら落書きイメージ^^

 

 

 

「土間」で南のお庭と繋がるプランです。

予算許せば土間に薪ストーブなんてのも良さそうでしょ。

 

ビフォー平面がこちら(カットしてますよ)

 

 

 

上が北で、南に大きく開いた既存建物です。

2階はこの色付けした範囲になります。

 

 

 

主要四隅直下には柱があるので、悪くない平面とも言えます。

 

そんな平面に対して

 

・主寝室を一階に

・南のお庭と繋がりたい

・収納を充実させたい

・書斎があると良いかな

・家族みんなで立てるキッチン

・冬あったかく夏涼しく暮らしたい

 

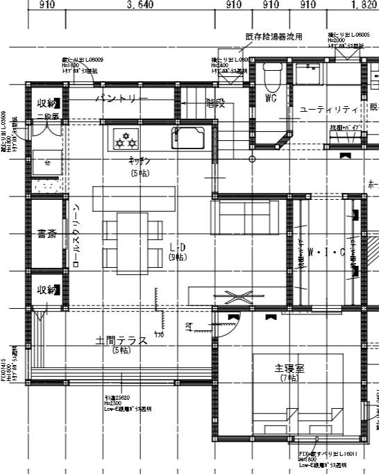
~等々のイメージにてプラン構築したのがこちら

 

 

 

いろんな所に心地よさそうな居場所を作ってみました。

玄関アプローチがこの図面で言う右側にありますので、リビング空間はあえて奥側に配して、カーテン無しで暮らせる目隠しとして主寝室で大開口を見えなくしています。

ただし出っ張り部分は桁下がりで低い屋根になっているので、冬季の日射取得には妨げになりにくい計画としています。



その上で、キッチンは壁付けにして裏にパントリーと、真ん中にアイランドテーブルを囲んで、家族みんなで使いやすく。

 

寝室に入る前のウォークスルー収納は家族分の衣類も収納出来、洗濯機からの動線も楽々。

このプランの特徴でもある土間は、ちゃんと断熱する事で冬季の日射蓄熱にも役立ちます。

 

南北の風の通りも宜しいかと。

 

 

 

畳3帖分増築しましたが、二階乗っかってる部分の区画はこんな感じ。

 

 

 

基礎補強案も含め上手く耐震区画取れています(まさかの自画自賛)

あと、階段は吹き抜けですからね(大切)

 

あとは窓を樹脂トリプルに変更して、断熱ちゃんと出来れば、その辺の新築より快適な暮らしが待っています。

 

そんなこんなのリノベプラン。

 

 

 

暮らし広がりそうでしょ(*´▽`*)

 

・・ボツ案だけどww

 
リノベーションは敷地と構造を読み込む所から。

おうち楽しも。

カレンダー
04 2026/05 06
S M T W T F S
1 2
3 4 5 6 7 8 9
10 11 12 13 14 15 16
17 18 19 20 21 22 23
24 25 26 27 28 29 30
31
プロフィール
HN:
Eye's@オカダ
性別:
非公開
自己紹介:
アイコン、くっ てしてますがw

【 ハウジングアイズ 】では、飛騨高山にてパッシブな高断熱思想を用いて、恒久的な省エネ快適住宅を御提案しております。
ふぉろーみぃ
ブログ内検索
以前の環境共生計画
2009年8月~2020年4月までの一言
その前の環境共生計画
2007年~2009年の一言