美しいデザインや正しい省エネ技術は 恒久性能の一部です 【旧レディオクラブ】
[1400]  [1399]  [1398]  [1397]  [1396]  [1395]  [1394

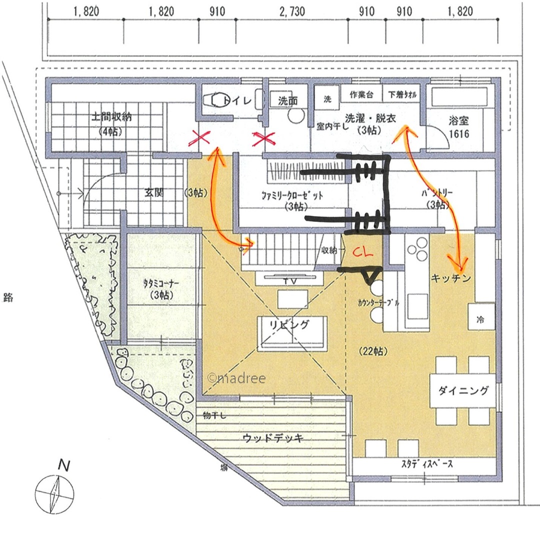
間取りを考える際「回遊動線」は常に意識します。

行き止まりが無いって事はお掃除も楽^^

ただ・・行き過ぎもどうかと(笑

 

こちら間取りブックで販売可能な間取りとして公開されている平面。

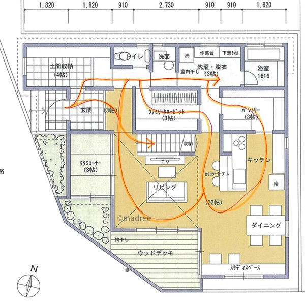
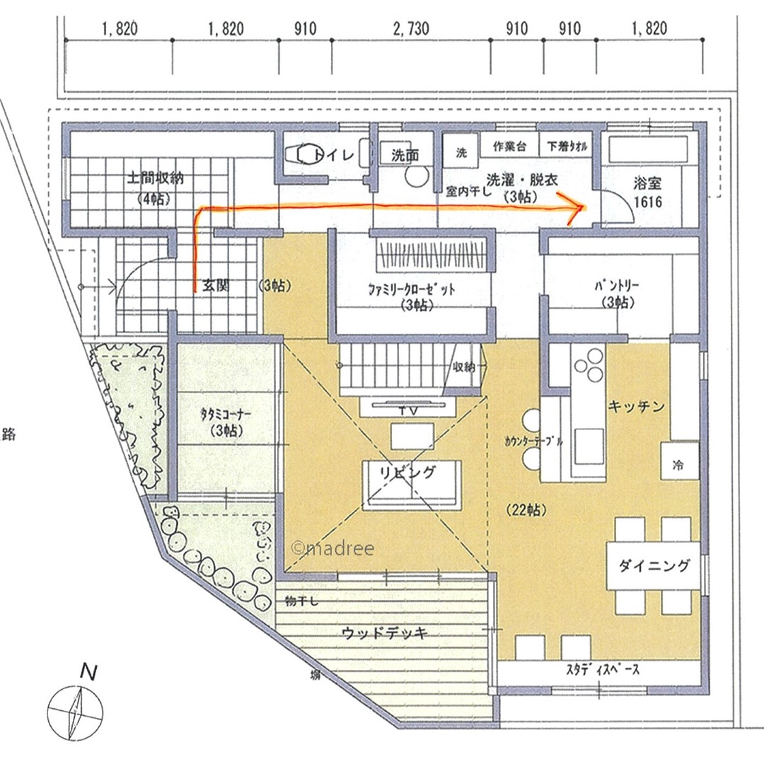
ふむ。玄関から収納~水回りへの動線が最近流行りな感じで宜しいです。

 

 

でも、こちらの「売り」は回遊動線って事で、行き止まりの無い平面となっています。

 

てか

 

 

 

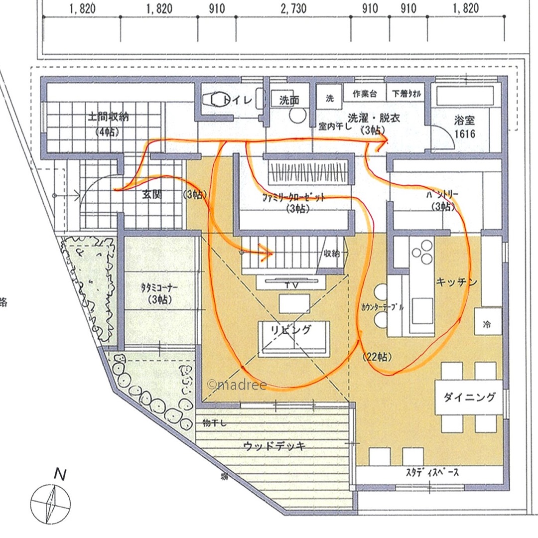
こんなに回る必要ある?(爆

 

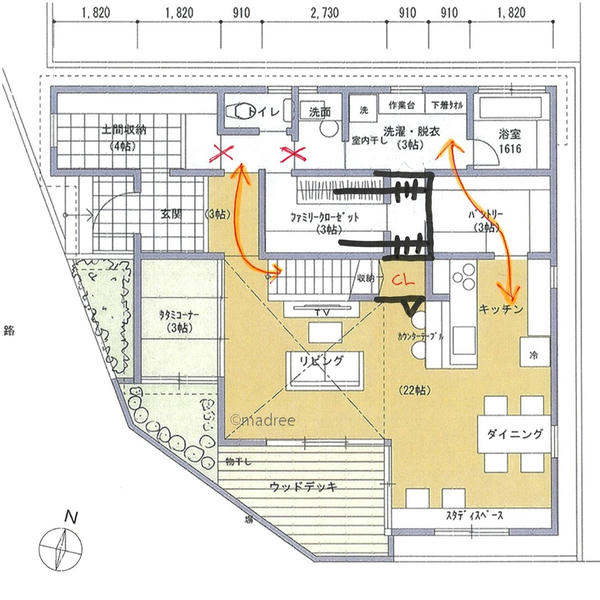
脱衣からキッチンへの移動にパントリー挟んでいるのはポイント高いのですが、私だったらその動線は残しつつ、ファミクロは止めるかな。

 

例えばこんな感じ。

 

 

 

一本動線消すだけで、1.5畳分の収納が増え、建具を5本減らせます。

 

特に生活動線増えないと思いますが、確実な減額と収納力アップが約束されます

 

どうですか。

 

コストカットは間取りからも可能です。

賢く使いやすく暮らせると良いですね。

 

その一本の線、必要なの?なんて考察も大切かなって思います。

 

そうそう、最近の流行りはこんなモンスターまで産んでいる様です。

 

 




部屋を通らずに洗濯物を干せる回遊動線・・なるほど(笑

 

アディ押忍

カレンダー
03 2026/04 05
S M T W T F S
1
5 6 7 8 9 10 11
12 13 14 15 16 17 18
19 20 21 22 23 24 25
26 27 28 29 30
プロフィール
HN:
Eye's@オカダ
性別:
非公開
自己紹介:
アイコン、くっ てしてますがw

【 ハウジングアイズ 】では、飛騨高山にてパッシブな高断熱思想を用いて、恒久的な省エネ快適住宅を御提案しております。
ふぉろーみぃ
ブログ内検索
以前の環境共生計画
2009年8月~2020年4月までの一言
その前の環境共生計画
2007年~2009年の一言