google-site-verification: google72b01b8ee6b1f4c3.html



美しいデザインや正しい省エネ技術は 恒久性能の一部です 【旧レディオクラブ】
[100]  [101]  [102]  [103]  [104]  [105]  [106]  [107]  [108]  [109]  [110

続:Automaticを歌う所(違

   

 

ドアの向こうに

 

 

 

オープン収納のお部屋

 

 

 

シンプルコーデが可愛い^^





「昔は高くても月1万円以内だったのになぁ」なんて話を良く聞きます。

 

そう 電気代の話。

ご存知、東日本大震災以降ゆっくりと電気代は上がっています。

 

「オール電化の家」なんて良く分からないカテゴリーが持て囃された頃、深夜電力は9円/kW程度で供給され、深夜電力契約してるとエコキュートの給湯費はザックリ月/2000円以内に収まっていました。

 

その深夜電力(現在はナイトタイム)も今では 16.3/kWh

以前の1.8倍です(涙

 

そんなこんなでベース単価が上がって来ると気になるのが、エコキュートの外気温による能力低下。

 

エアコンに代表されるヒートポンプ性能は外気温に対して「デフロスト補正」が必要になります。いわゆる霜取り運転ですね。

 

どのくらいの能力補正かと言うと、外気温0度でザックリ56%・マイナス8度を割ると50%程度の能力低下を見越さなければイケません。

例えばエアコンの能力5Kw欲しいなぁと思っていても、外気温がマイナス8度だと ザックリ2.5Kwしか能力発揮しないと言う事で、エコキュートの場合はその分余計に電力を食う事になります。
・・マイナス8度、普通にありますね(涙

 

今年の1月・2月検針の電気代が「お?」って位、上がったご家庭も多いハズ。

 

今年の飛騨はあったかいとは言え、10日間ほど最高気温が氷点下なんて日が続きました。ヒートポンプにとっては最悪の状態です。

もっと言うとエコキュートが仕事する深夜は。まぁ確実にマイナス気温で(汗

そんなこんなで、仮説を立証してみます。

 

とあるお客様の家より、8月からの電気代を教えてもらいました。

 

給湯および加熱器はエコキュート&IHで電気。

暖房は灯油ですので、深夜にお湯を沸かすエコキュートの電力推移が良く分かるかと。

ちなみに建物のQ値は1.01W

中部電力との契約はスマートライプ【夜とく】プランです。

 

 

 

お借りした電気代を表にしてみました(クリック可)

 

検針日は毎月15日前後ですが、検針日より一ヶ月前の電気料金となります。

(8月17日検針なら、一ヶ月前である7月の電気代)

 

 

 

11月の検針(10月の電気代)のアットホームタイムが極端に高いですが(謎)後は大体似た感じですね。

 

 

 

ナイトタイムに注目すると9月検針が一番安く、1月検針が一番高い事が分かります。

 

 

 

年間を通じてナイトタイムの暮らし方が大きく変わらないとの事で、この差がエコキュートの電気代の差と言っても大きな間違いでは無さそうです。

 

となると外気温による金額差は約3600円。ザックリ2.4倍・・・むぅ・・デフロスト補正はもう少し大きく見なければイケないかもですね。

 

この辺が寒冷地の弱点。

温暖地の人々羨ましいw にも関わらず寒冷地の我々は暖房なんかも余計にエネルギー使う訳ですから、やっぱり住宅の断熱性能は大事です(いつもの着地)

 

てかですね

 

ナイトタイムの半分くらいは再エネ発電促進賦課金が占めています。

 

 

 

てかてかですね

 

なーんも使って無いのにデイタイムとドッコイドッコイ・・なんなら高い月も あるやないかぁーい!

 

 

 

再エネ賦課金、ホント愚策としか言えません・・さっさと止めろっちゅーねん。

 

この再エネ賦課金ほとんどが太陽光パネルの買取電力でしょうけど、やっぱ夏より秋~冬の方が大きいですね。

夏は暑すぎてパネルの発電量力落ちるのです。直接的に賦課金も減っていますw

 

政府は携帯電話の割引に躍起ですが、この再エネ賦課金もダイレクトに可処分所得を押し下げる要因になってます。

これは政府が決めた制度なので、政府が正さないと何も変わりませんぜ。

 

買取価格も一気に下がってきた所で、そろそろ止めた方が宜しいかと。

 

いゃ、今回はヒートポンプのデフロスト補正の話だった(笑

 

思ったより、冬季のエコキュートの電気代は外気温に左右されているって事、改めて羅列すると分かりやすいですね。

 
ぢゃ その対策は?

んー また後日にでも (^^



アディ押忍。






天井が高いと部屋が広く見えるとか、天井の高い家で育つと子供が賢くなるとか・・都市伝説みたいな話を聞いた事あるかと思います(笑

 

それ何も根拠ありません。

天井高い方が良ければ空見てた方が余程高い(屁理屈)

 

ちなみに人間の視野角って縦120度・横200度だと言われます。

 

 

 ※画像はクレジット先よりお借りしています



なので真上を高くしても、見上げない限りは高さなんて感じないのです。

 

玄関入って土間部分だけ吹き抜けになった家とか見た事あると思います。

実際1.8m位の奥行を吹き抜けにしても、吹き抜けてる事すら気付かないかとw

 

なので高さを意識したければ、何処か決まった位置を意識して(ほとんどがリビングのソファかと思いますが)そこに座って上下を開ける様に設計する事が必要。

 

 

 

もっと言うと、座った時でも上下より左右の方が視野角広いので、横方向に視線が走る様にした方が広く感じます。

 

 

 

それは室内だけでは無く、窓の外にも視線を広げ、自分の見たい景色を窓の外に創ってあげる事も上級テクニック。

 

外部とも丁寧に視線を繋げる事が出来れば、床面積以上の広さを感じる事が出来ます。

 

リビングは「何畳必要か」の前に「どう暮らしたいか」を意識した方が正解に近づけるかと思いますよ。

 

窓辺が快適な家は広く使えます。

 

窓辺の外が抜けている家は広く感じます。

 

「寒いから閉めて」が無い家。住宅性能はもちろんですが、その性能を生かす空間デザイン力は必須だと言えるでしょう。

 

アディ押忍。





北側の窓について

https://housingeyes.bijual.com/Date/20210121/

 

北側の開口については何度も触れていますが、こちらにとっては北側ですが、北側に建っている家にとっては、こちらが南側。

当然、開口もこちらに向かって開いているハズです。

なので不用意に窓を設置すると、意図せず隣家の方と目が合ったりして・・ちょっとねと(笑

 

例えばこちらのキッチン

 

 

 

対面カウンター下にもタップリ収納を持ったコの字型キッチン(オリジナルキッチンすよ

 

奥の天井が抜けている事分かりますか。

チェーンで開口出来る窓が設いています(トリプルガラスね)

 

 

 

空調の要らない時期なんかはこちら開けて頂くと、上昇気流で風が作れます。

 

こんな感じ。

 

 

 

普段は優しい光がこぼれ、裏の家の方も「覗かれてる感」は無いかと思います。

 

 

 

アディ押忍




本日は月曜日ですので ツブヤキまとめ

 

2月15日~21日までの1週間分です。

 

本日はニャンニャンニャンで猫の日らしいですニャン。

 

~~~~~~~~~~~~~~~~~

 

購買の選択が資産の違い。10年持つモノと30年持つモノ、目的に応じイニシャルコストだけで無くランニングコストも加味できる層が「お金持ち」になれるんだと思う。

 

↑新興住宅地に見かける築浅のデザイン住宅的な家、何故こんな所に大きな窓が??なんて結露だらけのアルミ窓を見るたび思う。

 

リフォーム怖い。46条壁量計算すら満たしていない提案図を見せて貰った。建築確認いらないので・・ってをぃ。

 

飛騨古川@乗鞍キレイ

 

 

屋根断熱の場合、連続した防湿層を作るのに防火とか構造との兼ね合いで悩むんだけど、防湿層の室内側にR6.3K/W位の断熱層作ると、一年通して結露の心配無くなる事発見。防湿層の外には3.6K/W+透湿層+通気層。うむ、悪くないだろう。まぁ等級4とかZEH位の性能なら悩む必要無いんだけれども。

 

かの国の企業は かの国の出先機関。

Clubhouseのデータは中国企業Agora社に送られている。スタンフォード大が警告

https://t.co/9bv507qfrQ?amp=1

 

労働保険料の領収書と共に送られてきたコレ。これが噂のラブライブってヤツか・・どの層へのアピールなんだと悩む昼下がり。

 

 

家中どこも同じ温度なら、寒い冬も家の中全部が行動範囲。お兄ちゃんは窓辺で、ママはキッチンで、パパはリビングで、窓の外に降る雪を見ながら健康的に暮らす。「寒いから閉めて」が無い家、如何ですか。仮置熟成2

 

↑ ママはキッチンで ってのはジェンダー問題になるかもなので却下ですか。パパとママはキッチンで・・そもそもパパ二人なら・・うーん、なんちゅーかほんちゅーか。

 

家中どこも同じ温度なら、寒い冬も家の中全部が行動範囲。窓の外に降る雪を見ながら健康的に暮らす。「寒いから閉めて」が無い家、如何ですか。って感じをコピーにしようかと仮置熟成。

 

再稿

地震怖い。うちのオーナー様は怖いからこそ家に居て。その辺に逃げるより絶対的に安全だから。あと柱状地盤補強した方、残念ながら何もしてない隣の家より突き上げ感じます。これ豆腐の上に家があるか、石の上に家があるかの差になりますのでゴメンナサイ。安心材料としてください。

 

気圧のせい?違う違う。ドルチェ&ガッパーナのせいだよ。

 

東北地方で火力発電13基停止で停電。原発あるんだから動かせよ。人は原発動いても死なないけど、冬季に停電続くと死ぬ。やっぱ個人レベルで最大の災害対策はキャンプ用品の充実だなぁ。

 

素朴な疑問なんだけど、平均寿命を超えて基礎疾患ある人に 無理やりワクチン打って意味あるのだろうか。

 

まぁ蔓延させないって意味では良いのだろうけど、ワクチン打った次の日に寿命で亡くなる事もある訳で、トリアージは議論すら禁句なのかな。



スケルトン階段の場合、ササラ桁(踏板の段々が見える)より、側桁(横の板がナナメに上がる)階段の方がスッキリしますね。



 

似た階段でも 手摺デザインを変えるだけで印象が異なるのが分かります。

   

 

アディ押忍。



今年は雪が多いとか言いつつ

平年に比べるとやっぱり少なく・・まぁそれでも屋根の雪下ろしは10件超えですがw

 

そんな あったかい飛騨の春ですが、今頃雪下ろし+通路作りの依頼。

 

いゃいゃ 今頃もぅ問題無いすよ^^・・と見に行けば

 

 

 

あぅ    まだ普通に1.5mはありますな(汗

 

おそるべし別荘地w




SNSなんかでも結構間違った事 拡散してみえる方が見えますが(苦笑

 

分からない事はプロに聞きましょう。

 

そのプロが間違ってたら・・困りました(汗

 

こちら某インスタで見かけた自問自答(加工しています)

 

今大手ハウスメーカーで家を建てている方のポストなのですが、気密性の高い家にしたいと、防湿気密シートをお願いしたそうです。

   

 

そこでの担当さんとの話から出た結論が上の疑問らしく。

(えっ?プロに聞いたんだよね?ほんとに自問自答ぢゃ無いよね?)

 

まず防湿気密シートは0.1mm以上と規定され、北海道では0.2mmが推奨されています。

ちなみに弊社は標準的に0.2mmを採用しています。

 

ただ、その前にハウスメーカーさんの認識が異なっている様で・・

 

「厚みを厚くすると、夏の逆転結露が発生した場合、湿気を逃がし難い」

 

ちょっと何言っているのか分かりませんが、気密シートの意味を理解してみえない様です。

 

壁に施工する防湿気密シートは「室内の湿気を壁に入れない為・漏れ空気を無くし気密性能を上げる為」に施工するのです。

 

の様に、あくまで連続して家中を気密化する事が定石(赤点線)

 

 

 

夏の逆転結露についても、湿気は厚みで室内に逃がすのでは無く、あくまで外部への排出を基本とします。

 

透湿を考えるのなら、厚みの差異では無く「透湿シート」の採用が必要。

 

防湿と透湿、考え方が違う訳です。

 

壁は透湿すべきか防湿すべきか?その辺は露点計算すれば施工方法を導き出せますが、その前に根本を認識してないと不味いですね(苦笑

 

そんなこんなでプロ?の知識、結構差があって怖いねって話でした。


餅は餅屋ですねw




ケースメント窓からぺローンって・・これ替えられますか?

 

 

 

ウェザーストリップですね

こちらのHURD社は、現在Sierra Pacific社と名前を変えていますが(買収ですな)部材は普通に調達できますので問題ありません。

 

 

 

ただ‥色はホワイトオンリーになります。

 

でも、ぺローン解消可能です(笑

 

築後20年以上経っても、会社が変わっても手に入る交換部品。日本のメーカーも見習ってほしいモノです。




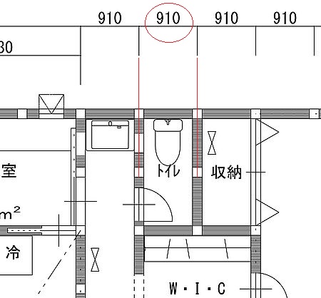
先日、うちのトイレって なんとなく広いですよね?なんてお話を頂きましたが、こちらは向かって右の壁厚をそのままトイレ内に取り込んでいますので、そんな印象なのかと思います。

 

 

 

耐力壁や、音の問題が無い場合は壁の厚み分だけ広くする事も出来ます。

 

【アイズブログ:壁厚分の吸音】

https://housingeyes.bijual.com/Date/20201218/

 

壁の厚み?

 

壁の厚みとは、例えば4寸角柱でしたら柱の厚み120mmが壁の厚みです。

 

トイレ幅の芯々寸法が910mmだとすると、壁の厚み+下地で内寸法は765mmになります(120mm柱の場合)

 

 

 

なので柱を残しても、壁の厚み分だけでもトイレ内に取り込むとこんな感じに。

 

 

 

微妙な違いですが、狭い部屋での10センチって結構印象違ったりしますので、最初の「なんとなく」に繋ったのでしょう^^

 メーターモジュールより広くなる尺貫法裏ルートでした(笑


アディ押忍






カレンダー
09 2025/10 11
S M T W T F S
1 3 4
5 9 10 11
12 14 15 16 17 18
19 20 21 22 23 24 25
26 27 28 29 30 31
プロフィール
HN:
Eye's@オカダ
性別:
非公開
自己紹介:
アイコン、くっ てしてますがw

【 ハウジングアイズ 】では、飛騨高山にてパッシブな高断熱思想を用いて、恒久的な省エネ快適住宅を御提案しております。
ふぉろーみぃ
@cool_toy からのツイート
ブログ内検索
以前の環境共生計画
2009年8月~2020年4月までの一言
その前の環境共生計画
2007年~2009年の一言