美しいデザインや正しい省エネ技術は 恒久性能の一部です 【旧レディオクラブ】
[22]  [23]  [24]  [25]  [26]  [27]  [28]  [29]  [30]  [31]  [32

俳優の中山美穂さんが亡くなって数日。

ヒートショックと言うワードも市民権を得てきた様です。

 

調査発表も「入浴中の不慮の事故」との事で

事件性や薬物の可能性も無くなりました。

 

ただ ヒートショックと言うと 急激な温度変化による

血圧の乱変化をイメージしますが

報道によると彼女の自宅はビルの6階との事で

たぶんRC(鉄筋コンクリート造)なんでしょうけど

当時の気温見るとそこまでの温度変化は考えられず

今回の御不幸は「熱中症」による不慮の事故かと思います。

 

え?冬に熱中症?

 

疑問に思われる方も多いでしょうけど

実際 体温365度の人が全身浴した場合

お湯が41度だと30分で体温が395度に上がるらしく

体温が40度を超えて上がりすぎると

重症の熱中症で意識障害や死に至る危険もある訳で。

 

 

 ※画像は東京新聞「ライフスタイル」より


時期も冬季なので水分も取ってないだろうし

熱めの長湯は熱中症のリスクが増大します。

 

ではなぜ熱中症になるほど 熱いお湯に入り続けてしまうのだろう?

それは単純に室内温度が低いから。

 

室内温度が低いから 熱めのお湯に長湯して

身体を温めようとするのって 誰しもご経験あるのでは。

 

なので 出来れば脱衣室には暖房入れて

服を脱いだ後の冷えを出来るだけ小さくして頂きたいモノです。

 

アイズが断熱(数字)に拘るのは暖房無しでも

脱衣室の温度が18度以下にならない様にする為。

何も流行りで数字追ってる訳では無いのですw

 

そんなこんなで

 

熱めの長風呂は避けましょう。

 

倒れる事を考えれば 脱衣室の暖房費なんて安いものです。

 

もちろん既存建物でも断熱施工してあげれば

暖房費も浮くってモノで^^

 

もちろん泥酔しての入浴はもっての外ですが

お風呂の温度 ちょっと意識してみましょう。

 

そう言えば初めて冬を迎えた うちのオーナーさんから

「お風呂のお湯温度低くても不思議と快適で!」と驚きの声を頂いた事あります。

 

住環境と健康 深いつながりがありますよ。



本日は月曜日ですので いつものツブヤキピックアップ。

 

12月2日から8日までの1週間分です。

 

寒いっす。冷えは万病の元なので気を付けましょうね。

 

~~~~~~~~~~~~~~

スキップフロアって楽しそうな表現だけど、英語圏だとスプリットフロア(分断した床)だから。

水平応力も分断する訳で、その辺も見て見なかった4号の闇。知らなかったでは済まない。

 

お店に行列できるだろうカレーうどんを完成させたんだけど、牛脂から始まる油分が凄くて食べる気にならない(コラ

 

ギックリ腰治ったので軽く朝ランと思えば雪積もってるとか。

 

お客様に「この家ヒートショックやばいです」と言われた事ある。薪ストーブのある家なんだけど、薄着で暮らしてて、そのまま薪取りに外出て・・さぶっ!らしいw

大丈夫ですよ、身体暖まってるので健康被害あるほど血圧変動しないですからww

 

エアコンのメーカー想定寿命は基本同じなので、良く分からない機能をチョイスするだけ故障リスクが、、あ、誰か来た様だ。

 

ちょ 待てよ(キムタクで)   

地域区分4→6にしただけで基準一次エネ(MJ)普通に半分以下やん。温暖だから冷房負荷多少増えるけど、そんなん誤差くらい暖房とか換気イヤほど増えるやん。 なのに同じハードル設定て寒冷地に親でも殺されたんか。

 

うちの近くでも屋根の上に居たクマを、猟友会と警察がずっと見るだけで何も出来ず、最終的に捕獲器に入ったのを遠くの山に放したらしい。結局その近くの住宅地に出るだけで何の解決にもなっていない。ただただ偽善。

 

合板のくぎ打ちチェックはピッチ寸法では無く、一辺に打たれる釘の種類と本数。ピッチは目安位に考えて吉。

 

釘一本の引き抜き強度×本数=強度。釘強度は長さだけで無く種類で異なる。

 

耕運機と除雪機を入れ替えねば。そして一台の除雪機はクローラ交換せねば

 

知り合いがコロナ罹患したらしい。まだ居たのか。

 

構造塾が推奨するルールである4スパン(MAX4.5)以内の架構組み合わせは、コスト的にも理にかなっている。

 

吹き抜けの窓から、2階ホールとの間にビニール貼ってあるの見えた。床下から冷気引っ張って、暖気ぜんぶ天井に抜けてんだろうな。改修してあげたいw

 

USスチールもぅダメかも分からんね、誰かトランプに教えてやれよ。

 

いゃ印刷屋さんがペーパーレス推進しちゃダメでしょw

 

 

エアコンカタログにあるAPFは「通年エネルギー消費効率」なので、COP値が欲しい時は「定格冷房能力(W÷定格冷房消費電力(W)」で算出する。

 

外構計画は見たくないモノを断捨離するって意識も必要。

https://housingeyes.bijual.com/Date/20241203/

 

 

15年、床下暖房用のFFヒーターが調子悪いとの事で、メーカーメンテにエラー番号を確認すると「あぁ見るまでも無く無理です」爽やかなくらい潔いな(違




足場が外れた現場。

杉板ウッドロング仕様が良い感じ。

 

 

 

ウッドロングエコは久しぶりに使うけど 

それって木材防護保持剤の名称で「焼却しても害をださない」

「周辺の土壌・水を汚染しない」「塗りなおし不要」

なんて特徴があるけど 一番の利点はタイムマシーン的に

数年後の色合いに仕上がる所かなって。

 

無塗装のまま 数年掛かって黒くなったり

グレーになったりする経年を愉しむのも良いけど

イキナリ数年後の風合いが出るのも悪くない^^

 

そんな足場が外れたおうち 見かけた方より

「珍しく引き違い窓使ってますね」なんて言われました。

 ちなみに樹脂製トリプルガラス(遮蔽タイプ)ですが

いゃー良く見ていらっしゃるww

 

弊社的に引き違い窓はあまり使わないんだけど

こちら 2階にアップライトピアノを入れる予定にて

全開口出来る引き違いをセットしたのでした。

 

搬入イメージはこんな感じ^^

https://housingeyes.bijual.com/Date/20240402/ 【ピアノの搬入】

 

最終的に こんなイメージの可動する横格子付けちゃうので

 

 

 

また印象変わると思いますけどね^^

 

そんなこんなの窓設定でした。

 

全ての開口には意味があるのです(ちょっと違うかw)

 

アディ押忍



せっかくの日射 室内に取り込んでますか

 

例えば この陽が当たっている部分と陰の部分

床の温度5度は違います。

 

暖房無しで床の温度5度の差は大きいですよ^^

 

 

 

そんな日射熱

レースのカーテンあるだけで 2割くらい遮蔽しちゃいますし

網戸や窓ガラスの汚れなんかでも数パーセント変わります。

 

窓掃除して

網戸外して

レースも引いて

 

太陽の恵みを室内に取り入れましょう。

 

窓は暖房器具にも成ると言うお話でした。

 

え?道路からの視線?

外構で視線操作する手もありますが

思うほど誰も見てませんしw

実際反射光でほぼ見えないですよ。

 

ささ まずはガラス掃除です。

 

アディ押忍。



屋根の収まりには 母屋で屋根を支える方法と

 

 

 

ツーバーフォーの様にゲーブル作る方法があります。

 

デザインによって使い分けますが

↓ こちら玄関前にてスッキリさせたかったので

母屋無しで屋根を組んでます。

 

 

 

中々な軒の出でしょ。

ここまで伸ばすと雨宿りだって出来ますね。

 

さて本題はそこでは無く(無いんかいっ)

経済的な架構について

 

この例は2台分のガレージなので致し方無いですが

横架材の大きさ(丸印)を比べてください。

 

 

 

下に柱があるか無いかで これくらい大きさ変わります。

しかも5460mm飛ばした側は積層のハイブリット材。

 

それと直角に奥へと伸びている材料も大きいでしょ。

 

もちろん横架材の価格は10倍以上違いますし

これ見えてないけど 基礎の地中梁にも効いてきます。

数十万円は簡単に変わってきますよ(恐)

 

今回は2台分ガレージなので仕方ないけど(何度も言う)

居室の場合は経済的なルールに乗っ取ってプランすべき。

 

同じ空間なら安い方が良いでしょ。

同じ空間なら強い方が良いでしょ。

 

無理な架構はお金の無駄。

 

こゆ事言うと「不自由な設計がー」って言いだす実務者居ますが

いゃそれアンタの意見ですよねと。

 

経済的なルールに乗っ取っても別に不利になる事はありません。

 

経済的に伸びやかな空間。

 

構造見学はいつでも受け付けていますよ^^

 

お気軽にお問合せ下さい(今日は営業チックになったな・笑)

 

アディ押忍




木柵(赤松無塗装)施工中の図

 

 

 

この塀の高さって目隠しの意味も大きいけど

見たい景色を切り取る為にも有意義かと。

 

例えば 柵の上からの景色はこんな感じ

 

 

 

おうちが並んでいるのが見えますが

こっちから見えるって事は向こうからも(当たり前すか)

 

あと 柵と地面の隙間が気になる方も多いのでは。

 

その隙間は積雪・防腐対策として

いくら水切よく作っても いつも濡れてたら腐りやすいしね。

※一番痛みやすい水平天端は板金巻き

 

で この画像は昨日(12/2)の15時過ぎ頃。

 

 

 

地面見ると低い日射が伸びてきてるでしょ。

 

この日射が積雪を溶かしやすくしてくれます。

 

塀の裏の雪がいつまでも残ってても嫌でしょw

 

この隙間に芝桜やお花植えると 街並みも楽しくなるなって。

 

ちなみに 柵の下に格子見えるんだけど

 

 

 

 

これドックランとして機能する為。

 

鉄筋なので つる性植物這わしても可愛いかと。

 

ちなみにこちら

 

 

 

お客様から頂いた「リビングからの眺め」

 

切り取られた近くの山と空以外は 消えているでしょ。

 

こりゃ良いわ^^

 

物置を柵内設置したのは防犯上も良い事でしょう きっと。

 

そんなこんなの目隠し案件。

 

目隠し板は無塗装なので 2年もすればシルバーグレイに落ち着いて

もっと景観に馴染むと思いますよ^^

 

アディ押忍。





本日は月曜日ですので いつものツブヤキピックアップ。

 

11月25日から12月1日までの1週間分です。

 

師走入りましたね・・しわすかぁ(遠い目

 

~~~~~~~~~~~~~~

 

M-1MはモッタイナイのM・・年末ですなw

耐震等級3でも被害を受ける地震が来るかもしれない

もったいないから耐震等級1にしましょう

https://x.com/Ms_Structure/status/1862973612510343619

 

寒冷地の定義って1・2地域とされるけど、断熱等級6.7クラスだと 3地域も同じ基準なんだよなw

 

◆断熱等級6とは

4地域ならUA=0.34以下

3地域ならUA0.28以下

うちだとアベレージで楽勝クリアしてるレベル。

 

↓一時エネ削減案とは言え、例えば4地域UA=0.20(当然ながら等級7)のプランで、熱交換換気と給湯・オールLED以外、特に評価しなくて大枠32~33%削減位。これまでは30%以上って一つの指針あったのでそれ以上求めなかったが、35%以上だと何処が効くのか細かく見て最適解作っておく必要がある。

 

GX志向型住宅の要件 ~

・断熱等性能等級「6以上」

・再生可能エネルギーを除いた

 一次エネルギー消費量の削減率「35%以上」

・再生可能エネルギーを含む

 一次エネルギー消費量の削減率「100%以上」

 ※寒冷地は75%以上

太陽光バカ程載せるだけでクリアできる要件では無いな。

 

 

【紹介ビジネス】

釣りだろうけど、見積・施工・集金まで貴社での対応を・・ってFAX。そしてMAIL返信先はフリーアドレス。

 

 

環境名目の補助金の意味を考えたら通年にせえよ。おまえらの年度末は生活に関係ないんじゃ凸

 

昨日イカ食べてたら、体内からプラスチックが出てきました。意外にこれ知られてないケースがあるんですけど、プラスチックの原料って石油なんですよ。イカを飼育する事で化石燃料問題は解決するんです。

 

 

え?多いの?→太陽光パネルの寿命は2030年とされるが、パワーコンディショナーの10年ごとの更新に伴って高出力パネルに取り換えることが多い。

北九州で太陽光パネルの「終活」事業化 再利用→資源化 - 日本経済新聞

https://t.co/e6cNuC4Wwu

 

雪虫が飛ぶと雪

カメムシ多いと大雪

カマキリの卵が高いと大雪

なんの根拠も無いけど、昨日雪虫いっぱい飛んでてなんかヤダ。

 

↓虐待以前に何かしら犯罪。ボクシングなんて体重でクラス分けしてるだろ?体重すら凶器になるんだよ。ジェンダーレス履き違えるな。

ジェンダー教育で男女混合サッカー、骨折した女子中学生の家族が怒り

 

震度3でした。備えましょう。

 


自分で管理できない他人の出来高を待つ事くらいキツイ事はない。働き方改革ですか、こっちは休日とか夜間も関係なく対応してるんだけれども。

 

そうか お前も値上げしてたのか

 

 

第三者機関の性能認定、認定機関が審査を外注の建築士に外注している時点で、申請側へのレスポンス日付は都度一日は遅れる。

審査は担当建築士の能力の是非に問われるが、その優位も時間的エキスパンションに数えるなら、来年の法改正は思ったより影響が大きいかも知れない。

 

これはヤバい。

最低でも一度に食べる量は46000個までにしよう。有益な情報だ。 

https://x.com/youko_rou/status/1860855925382304072

 

 

回れる動線は良いけれど、それが目的になると単に廊下が増えるだけだから気を付けよう。

国土交通省は、省エネ住宅を普及させる為、補助制度を拡充する方針を決めた。

従来よりも高い性能を持つ住宅を「GX志向型住宅」と位置づけ購入費を手厚く補助する。

 

 

 

財源は国債発行で賄う計画だと言う。

 

なんちゃってエコ機器モリモリの住宅と言うより、弊社がいつも言っている「断熱性能」が高い住宅がメインになりそうで、注目しています。

願わくば、この様な補助金審査が簡素に滞りなく進めば良いのですがw

 

さてGX住宅とは何ぞや?

 

GXとは「グリーントランスフォーメーション」の略で、脱炭素社会に向けて持続可能な生活に転換していく取り組みの事とされます。

 

ちなみに最近よく聞くDXというのが「デジタルトランスフォーメーション」の略で、デジタル化で社会を変える仕組みの事ですが、なんちゅーか相変わらず横文字並べるの好きね(笑

 

話は戻ってGX住宅の定義として、まだ細かく決まって無いですが、たぶん断熱等級6プラス以上になるかと。

 

 

 

ほら、ZEH住宅(等級5)なんてもう型遅れの性能でしょw

 

そんなこんなの国の方針。

 

あったかいは正義^^



面白い記事見つけました。

 

東海エリアの住みたい田舎・岐阜県飛騨市でのびのび暮らす!

https://x.gd/ZexpO

 

 

 

 

200万円の10DK広々物件は大世帯・2世帯でもゆったり住める!

 

だそうです。

 

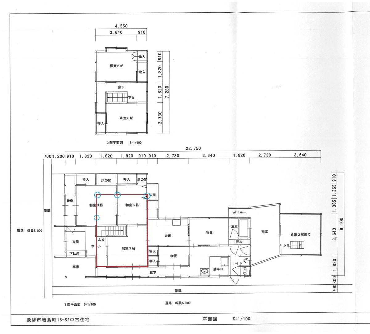
ほうほう 古川小学校の近くの売家ですな。

 

面白いのが

2024年版 第12回 住みたい田舎ベストランキング」

 

 

 

~で東海エリアでは飛騨市や高山市が上位にランキングしてるらしく。

ちょっと嬉しいす^^

 

そこで紹介してあった駅・コンビニが近くて生活に便利なおうち

200万円で田舎暮らし!ですが平面がこちら(クリック可)

 

 

 

たしかに部屋多いすw

 

ただ温暖地から このままの家に移住すると

本気で田舎が嫌いになるかも知れません(汗

 

ちなみにトイレはコレです。

 

 

 

タイルがエモいですが 居住区からは少し離れ冬季なんてほぼ外!

たぶん洗面の水なんかも普通に凍っている事でしょう。

 

若くても女性なんかだと特に 健康的にも宜しくないかと。

 

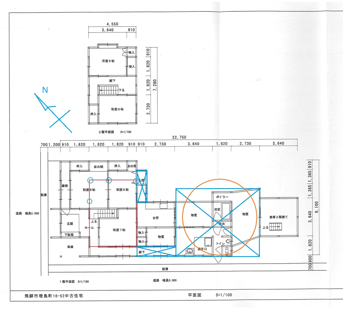
あと耐震。

 

いつもの様に2階を乗っけてみました(赤線)

 

 

 

青の丸印下に柱が欲しいです。

ちなみに飛騨市古川町は 法定積雪量2mです。

雪めっちゃ重いですよ。

 

そして冬は普通に氷点下二桁になる地域。

 

こちらに住まわれるなら水回りだけで無く

断熱+耐震工事が必要かと思います。

 

そして町中とは言え 南方向に道路入ってて

日射取得も望めるので 私なら青四角部分を撤去し

黄色丸部分を陽だまりと道路側を駐車スペースにします。

 

 

 

ご夫婦+お子様二人位なら 一階にLDK+寝室

二階を子供部屋と考えれば十分すぎる居住スペースで

お庭や空と繋がる「ほぼ平屋暮らし」が可能になるかと。

 

二階建ての倉庫は残しておいて物置に。

 

リノベはパッシブデザインとして日射を最大限取り入れ

耐震は積雪加味して上部構造の評点を1.0以上

断熱は等級6をクリアする位で設定すれば

その辺の新築より十分に健康的な暮らしが待っています。

 

コストも同地区の建売と同程度かそれ以下で めっちゃ快適。

 

そこまで想定できると 田舎移住は楽しくなるかと^^

 

もちろん

 

新築を考えている飛騨民にも同じ事が言えます。

 

「冬寒い夏暑い」は不健康なだけでなく

やっぱり時間がモッタイナイ。

 

リノベ=新しくなるだけではお財布にも優しくありません。

 

中古住宅+健康快適リノベーション

 

移住も含めて視野にいれても損は無いですね。

 

アディ押忍。




 漏れない事 入れない事 乾燥させる事

それがいちばん大事(KAN

 

数年前に再塗装したのですが・・と言う外壁

 

 

 

あぁ・・

 

それより こっちが気に成りまして(汗

 

 

 

位置関係的にはこんな感じ。

 

 

 

屋根~壁の取り合いから入った水が

外壁の内側から基礎まで流れています。

 

メンテとしては再塗装では無く 根本からの是正が必要です。

 

ドキドキしながら外壁を捲ると・・あぁやっぱり(汗

 

 

 

防水紙より内側の躯体まで水が回っています。

 

そもそも屋根が外壁の途中で止まる場合は

外壁内部に水が回らない様 二重三重の防水が必要

 

例えばこれ読んで↓

https://housingeyes.bijual.com/Date/20220225/

 

そして最悪でも 躯体に水が回らない様に

防水紙をレインスクリーンとして機能させ

さらに通気層で乾燥を促進する事が大切です。

 

ただ 今回一番懸念されたのが・・

 

 

 

あぁ やっぱり(涙

 

 

 

ただ一つだけ良かったのは この被害は限定的で

一部のスタッドと合板の交換だけで是正可能で

横架材までは浸食が広がっていなかったのが救い。

 

早めにご相談請けて良かったです(不幸中の幸いで)

 

 

 

その後しっかり防蟻防除して 躯体再生しました。

 

そして上記リンク先の様な防水工事を行い

通気もちゃんと促進してから外壁工事。

 

基礎の変な汚れ ちょっと気にしてみてください。

こんな事の可視化かもしれません。

 

冬支度の前に一度家の周り歩いてみましょう。

 

そして何か気になったら 早めの相談ですよ^^

 

アディ押忍




カレンダー
12 2026/01 02
S M T W T F S
2 3
4 5 6 7
14 15 16 17
18 19 20 21 22 23 24
25 26 27 28 29 30 31
プロフィール
HN:
Eye's@オカダ
性別:
非公開
自己紹介:
アイコン、くっ てしてますがw

【 ハウジングアイズ 】では、飛騨高山にてパッシブな高断熱思想を用いて、恒久的な省エネ快適住宅を御提案しております。
ふぉろーみぃ
ブログ内検索
以前の環境共生計画
2009年8月~2020年4月までの一言
その前の環境共生計画
2007年~2009年の一言